2 pièces - GENEPI (GENEPI30)
Présentation
Reberty 1850 - Résidence Le Génépi n° 30.
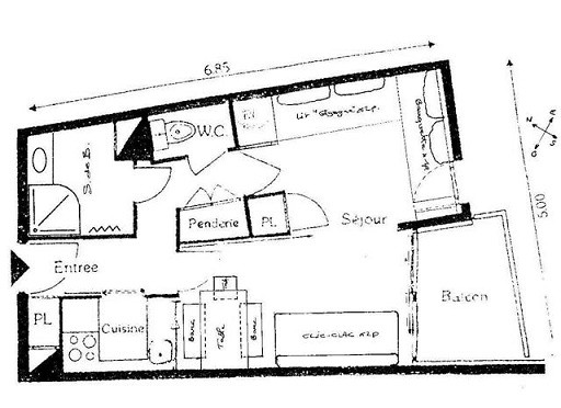
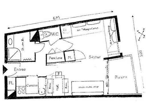
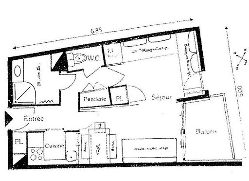
Beau 2 pièces divisibles, 5 personnes, 28 m², 5ème étage avec ascenseur,
Balcon exposé sud-est, belle vue sur les pistes. Résidence située au pied des pistes et des commerces.
Cuisine : 4 plaques vitrocéramiques, four micro-onde grill, lave-vaisselle, réfrigérateur avec compartiment congélation, cafetière électrique, grill pain.
Télévision
Chambre : 2 canapés lits simples (80x190cm) + 1 lit simple gigogne (80x190 cm).
Séjour : 1 canapé lit type clic clac (140x 190cm)
Salle de Bain avec douche, sèche-serviettes, sèche-cheveux.
WC indépendant
Appartement équipé de couvertures et oreillers.
Casier à skis niveau 2 de la résidence
Appartement non-fumeur, animaux non admis
Parking extérieur gratuit à proximité de la résidence.
Catégorie : Classique
Label station : 2 Flocons Bronze
Numéro d'enregistrement : 73257008761DP
Les draps et le linge de toilette non inclus
Sur réservation et sous réserve de disponibilité : ménage de fin de séjour (75€), location d'emplacement de parking couvert sur le quartier des Bouquetins (70€ la semaine), Kit housse de couette confort jetable 1 pers (13€), Kit housse de couette confort jetable 2 pers (18€), Linge de toilette (9€le kit 2 serviettes), tapis de bain (3€), mini box Wifi (39€ la semaine).
Taxe de séjour : 0.88€ par personne par nuitée (gratuité -18ans)
Dépôt de garantie 500€ (CB ou Chèque)
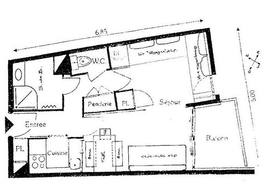
Beau 2 pièces divisibles, 5 personnes, 28 m², 5ème étage avec ascenseur,
Balcon exposé sud-est, belle vue sur les pistes. Résidence située au pied des pistes et des commerces.
Cuisine : 4 plaques vitrocéramiques, four micro-onde grill, lave-vaisselle, réfrigérateur avec compartiment congélation, cafetière électrique, grill pain.
Télévision
Chambre : 2 canapés lits simples (80x190cm) + 1 lit simple gigogne (80x190 cm).
Séjour : 1 canapé lit type clic clac (140x 190cm)
Salle de Bain avec douche, sèche-serviettes, sèche-cheveux.
WC indépendant
Appartement équipé de couvertures et oreillers.
Casier à skis niveau 2 de la résidence
Appartement non-fumeur, animaux non admis
Parking extérieur gratuit à proximité de la résidence.
Catégorie : Classique
Label station : 2 Flocons Bronze
Numéro d'enregistrement : 73257008761DP
Les draps et le linge de toilette non inclus
Sur réservation et sous réserve de disponibilité : ménage de fin de séjour (75€), location d'emplacement de parking couvert sur le quartier des Bouquetins (70€ la semaine), Kit housse de couette confort jetable 1 pers (13€), Kit housse de couette confort jetable 2 pers (18€), Linge de toilette (9€le kit 2 serviettes), tapis de bain (3€), mini box Wifi (39€ la semaine).
Taxe de séjour : 0.88€ par personne par nuitée (gratuité -18ans)
Dépôt de garantie 500€ (CB ou Chèque)
Vos avantages avec cet hébergement
- Situation :
- Départ skis aux pieds (sous condition d'ouverture de la piste)
- A moins de 200m des pistes
- Vos avantages :
- Jusqu'à - 27% sur vos forfaits de ski (selon périodes, uniquement en prévente).
- Toute la saison, des réductions sur vos locations de matériel de ski et vos activités
Situation
- Quartier Les Menuires :
- Reberty 1850
- Nom de Résidence Les Menuires :
- Génépi
- Etage :
- 5ème étage
- Exposition :
- Sud
- Est
- Situation :
- Départ skis aux pieds (sous condition d'ouverture de la piste)
- A moins de 200m des pistes
- Station :
- Les Menuires
En Résumé
- Balcon / Terrasse

- Lave-vaisselle

- Exposition Sud

Équipements
- Ascenseur :
- Ascenseur
- Equipement Cuisine :
- Micro-ondes
- Lave-vaisselle
- Grille-pain
- Equipement Séjour :
- Télévision
- Balcon/Terrasse :
- Balcon / terrasse
- Salle de Bains :
- Sèche-cheveux
- Local à ski :
- Casier à ski
Plan de la station
Destination
Résidence Le Génépi
41 passage des Lupins
73440
LES BELLEVILLE
Coordonnées GPS
Latitude : 45.31534182616977
Longitude : 6.5439313159140635
Avis
Note :
(3 avis)
4,33
/ 5
Janvier 2026
AURELIE
Note :
5
/ 5
Appartement très bien situé bien équipé et optimisé
Qualité de l'accueil
Le logement correspond au descriptif
Propreté du logement
Décoration du logement
Équipement du logement
Confort de la literie
Avis écrit le 06/01/2026
Décembre 2023
Michiel
Note :
5
/ 5
Great location and as advertised. Recently renovated, bedding is reasonable.
Qualité de l'accueil
Le logement correspond au descriptif
Propreté du logement
Décoration du logement
Équipement du logement
Confort de la literie
Avis écrit le 22/01/2024
Avis par type de profil

































