4 pièces - ACONIT (ACON224)
Présentation
Les Bruyères - Résidence ACONIT n°224
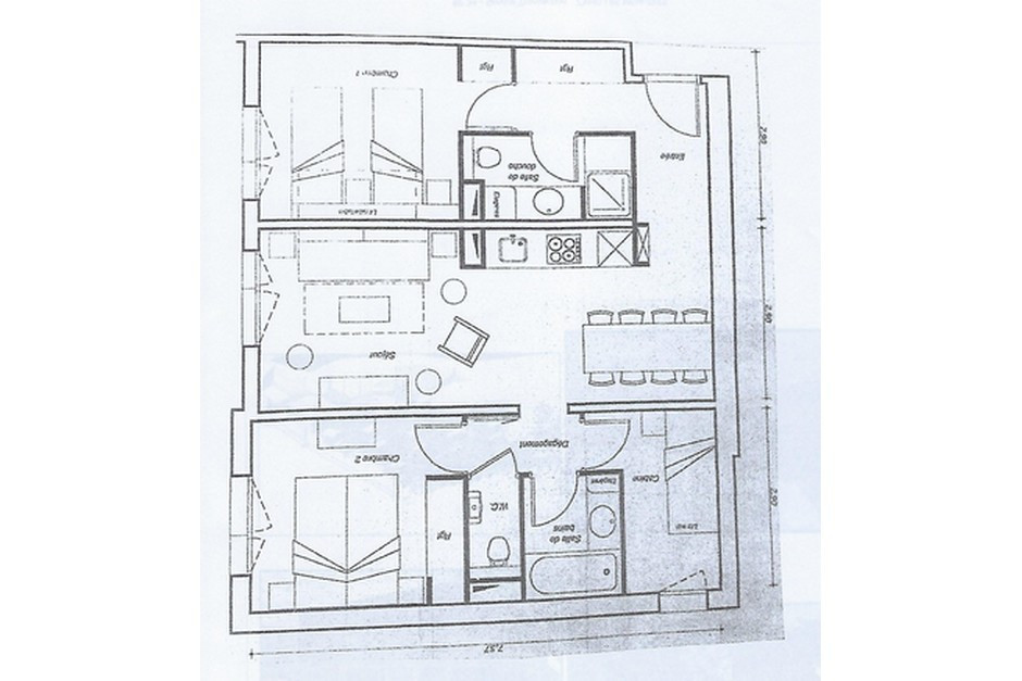
4 pièces 6 personnes, 62m², 2 ème étage avec ascenseur. sans balcon, exposés Sud Est, vue pistes. Résidence située au pied des pistes et des commerces.
Cuisine ouverte sur le séjour : 4 plaques vitrocéramiques, micro-onde grille, grand réfrigérateur avec compartiment congélation, lave-vaisselle, hotte aspirante, cafetière électrique, cafetière Dolce Gusto, grille-pain, bouilloire, appareil à fondue et appareil à raclette.
Chambre 1 : 1 lit double (160x190cm)
Chambre 2 : 2 lits simples (80x190cm)
Chambre 3 : 2 lits simples superposés (70x190cm)
Salle de bains : lavabo, baignoire, pare-baignoire, sèche-serviettes.
Salle de douche : lavabo, douche, sèche-serviettes.
WC indépendant avec lavabo.
Appartement équipé de 2 couettes 2 personnes et 4 couettes 1 personne et oreillers (60x60).
Casier à skis niveau 0 de la résidence (accès direct sur la piste des Boyes)
Appartement non-fumeur, animaux non admis
Parking extérieur gratuit à proximité de la résidence.
Catégorie : Classique
Label station : 3 Flocons Or
Numéro d'enregistrement : 73257013505WR
Classement préfectoral : 2 étoiles
Les draps et le linge de toilette non inclus
Service additionnels (sur réservation) :
ménage de fin de séjour (120€), location d'emplacement de parking couvert sur le quartier des Bruyères (70€ la semaine), Kit housse de couette confort jetable 1 pers (13€), Kit housse de couette confort jetable 2 pers (18€), Linge de toilette (9€le kit 2 serviettes), tapis de bain (3€), location de mini box wifi (39€ la semaine).
Taxe de séjour : 1.10€ par personne par nuitée (gratuité -18ans)
Dépôt de garantie 1000€ (CB)
Très bon emplacement, ski aux pieds, situé au cœur du quartier des Bruyères, accès direct sur place des Bruyères.
4 pièces 6 personnes, 62m², 2 ème étage avec ascenseur. sans balcon, exposés Sud Est, vue pistes. Résidence située au pied des pistes et des commerces.
Cuisine ouverte sur le séjour : 4 plaques vitrocéramiques, micro-onde grille, grand réfrigérateur avec compartiment congélation, lave-vaisselle, hotte aspirante, cafetière électrique, cafetière Dolce Gusto, grille-pain, bouilloire, appareil à fondue et appareil à raclette.
Chambre 1 : 1 lit double (160x190cm)
Chambre 2 : 2 lits simples (80x190cm)
Chambre 3 : 2 lits simples superposés (70x190cm)
Salle de bains : lavabo, baignoire, pare-baignoire, sèche-serviettes.
Salle de douche : lavabo, douche, sèche-serviettes.
WC indépendant avec lavabo.
Appartement équipé de 2 couettes 2 personnes et 4 couettes 1 personne et oreillers (60x60).
Casier à skis niveau 0 de la résidence (accès direct sur la piste des Boyes)
Appartement non-fumeur, animaux non admis
Parking extérieur gratuit à proximité de la résidence.
Catégorie : Classique
Label station : 3 Flocons Or
Numéro d'enregistrement : 73257013505WR
Classement préfectoral : 2 étoiles
Les draps et le linge de toilette non inclus
Service additionnels (sur réservation) :
ménage de fin de séjour (120€), location d'emplacement de parking couvert sur le quartier des Bruyères (70€ la semaine), Kit housse de couette confort jetable 1 pers (13€), Kit housse de couette confort jetable 2 pers (18€), Linge de toilette (9€le kit 2 serviettes), tapis de bain (3€), location de mini box wifi (39€ la semaine).
Taxe de séjour : 1.10€ par personne par nuitée (gratuité -18ans)
Dépôt de garantie 1000€ (CB)
Très bon emplacement, ski aux pieds, situé au cœur du quartier des Bruyères, accès direct sur place des Bruyères.
Vos avantages avec cet hébergement
- Situation :
- Départ skis aux pieds (sous condition d'ouverture de la piste)
- Vos avantages :
- Jusqu'à - 27% sur vos forfaits de ski (selon périodes, uniquement en prévente).
- Toute la saison, des réductions sur vos locations de matériel de ski et vos activités
Situation
- Quartier Les Menuires :
- Les Bruyères
- Nom de Résidence Les Menuires :
- Aconit
- Etage :
- 2ème étage
- Exposition :
- Sud
- Est
- Situation :
- Départ skis aux pieds (sous condition d'ouverture de la piste)
- Station :
- Les Menuires
En Résumé
- Lave-vaisselle

- Exposition Sud

Équipements
- Ascenseur :
- Ascenseur
- Equipement Cuisine :
- Micro-ondes
- Lave-vaisselle
- Bouilloire Electrique
- Grille-pain
- Equipement Séjour :
- Télévision
- Salon :
- TV écran plat
- Salle de Bains :
- 1.00 Salle(s) de bains avec baignoire
- Sèche-cheveux
- Local à ski :
- Casier à ski
Plan de la station
Destination
Résidence Aconit
Rue des Bruyères
73440
LES BELLEVILLE
Coordonnées GPS
Latitude : 45.315037
Longitude : 6.540803
Avis
Note :
(1 avis)
4
/ 5
Mars 2025
Nelly
Note :
4
/ 5
Qualité de l'accueil
Le logement correspond au descriptif
Propreté du logement
Décoration du logement
Équipement du logement
Confort de la literie
Avis écrit le 18/03/2025
Avis par type de profil









































