3 pièces cabine - ACONIT (AC0124)
- Non classé
Présentation
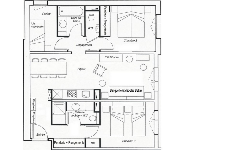
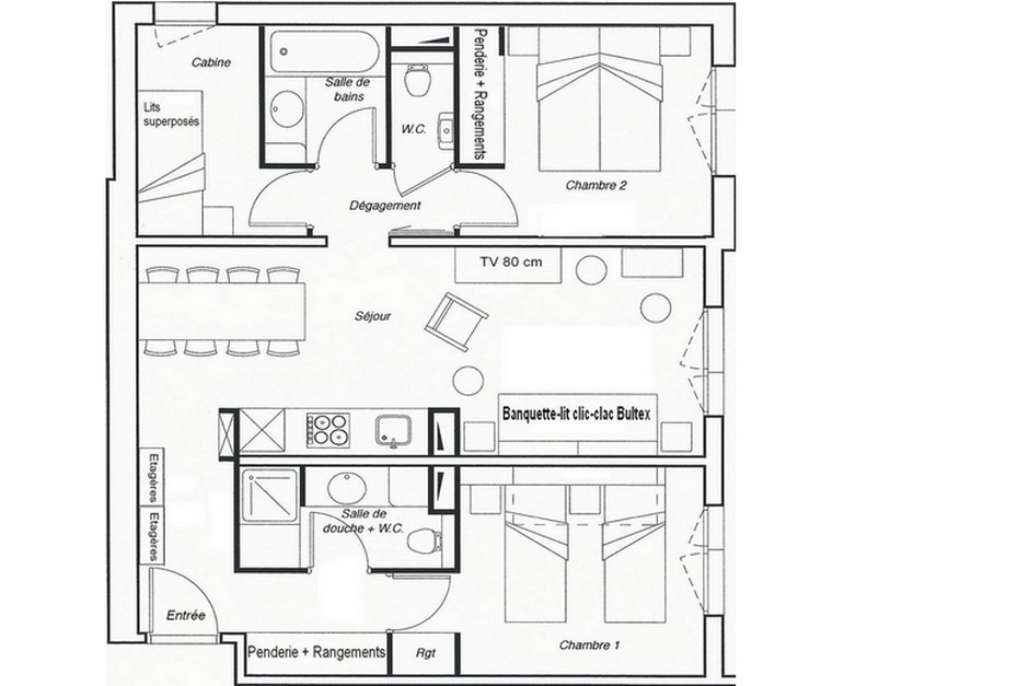
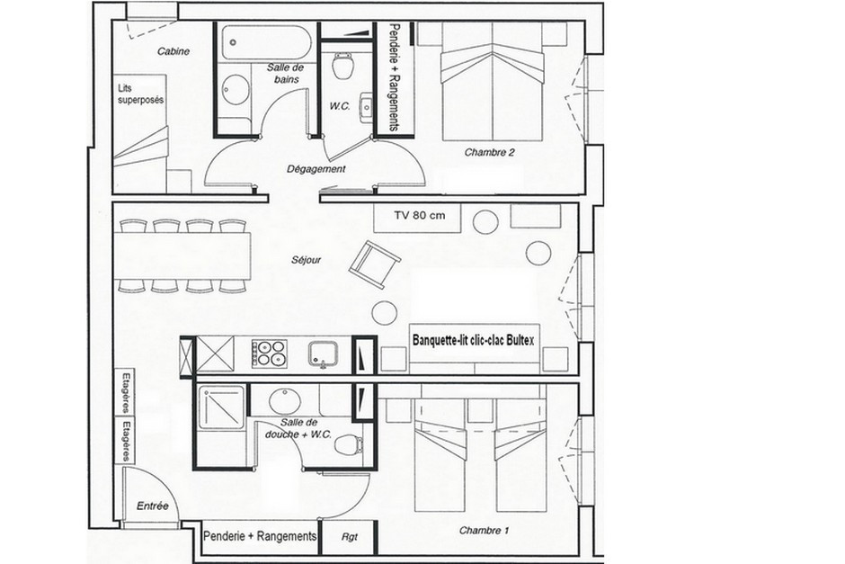
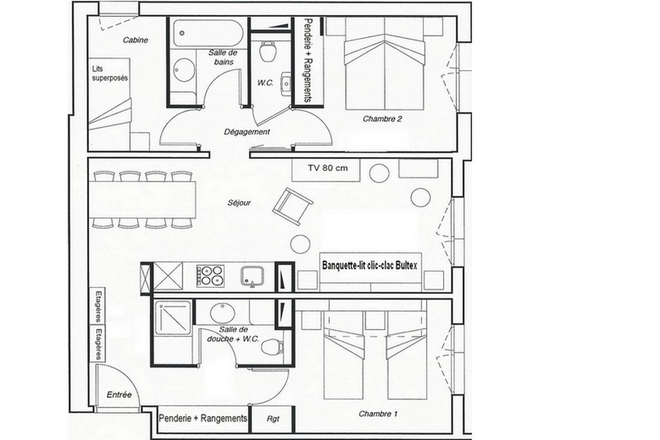
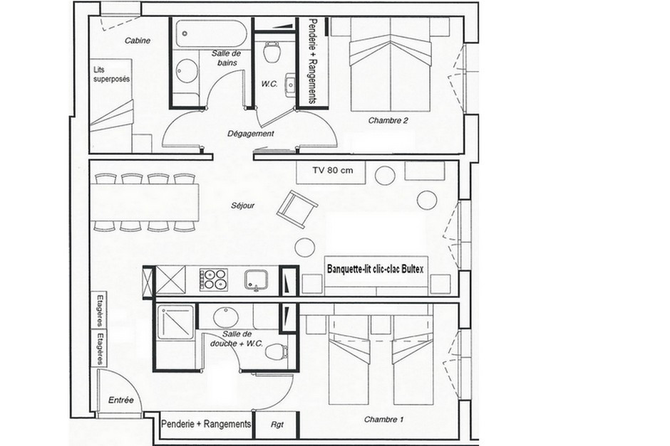
Bel appartement entièrement rénové de 62 m² pour 8 personnes avec séjour, 2 chambres et cabine.
Il est situé au 1er étage exposé SUD-EST sans balcon. Appartement loué avec une place de parking couvert (hauteur limitée à 2 mètres et accès direct à la résidence).
Casier à ski avec accès direct sur la piste Fontanettes.
Label : 3 flocons or.
Séjour : 1 banquette clic-clac, matelas Bultex, pour 2 personnes. Equipé d'une télévision.
Cuisine équipée de 4 plaques électriques, grand frigo, lave-vaisselle, four micro-ondes, cafetière et machine à expresso Senséo, bouilloire et grille-pain.
Chambre 1: 2 lits 1 personne.
Chambre 2: 2 lits 1 personne.
Cabine (fermée par une porte, avec fenêtre) : 2 lits 1 personne superposés.
Salle de bains avec baignoire.
Salle d'eau avec douche et WC.
WC indépendant.
Draps coton offerts.
Serviettes non fournies.
WIFI Station payant, sous réserve de couverture du réseau.
Appartement non fumeur.
Appartement équipé de couettes
Animaux non admis.
Le couchage en hauteur ne convient pas aux enfants de moins de 6 ans.
Sol parquet stratifié dans les pièces de vie et moquette dans les chambres
Laverie automatique disponible dans la résidence (accès payant).
Il est situé au 1er étage exposé SUD-EST sans balcon. Appartement loué avec une place de parking couvert (hauteur limitée à 2 mètres et accès direct à la résidence).
Casier à ski avec accès direct sur la piste Fontanettes.
Label : 3 flocons or.
Séjour : 1 banquette clic-clac, matelas Bultex, pour 2 personnes. Equipé d'une télévision.
Cuisine équipée de 4 plaques électriques, grand frigo, lave-vaisselle, four micro-ondes, cafetière et machine à expresso Senséo, bouilloire et grille-pain.
Chambre 1: 2 lits 1 personne.
Chambre 2: 2 lits 1 personne.
Cabine (fermée par une porte, avec fenêtre) : 2 lits 1 personne superposés.
Salle de bains avec baignoire.
Salle d'eau avec douche et WC.
WC indépendant.
Draps coton offerts.
Serviettes non fournies.
WIFI Station payant, sous réserve de couverture du réseau.
Appartement non fumeur.
Appartement équipé de couettes
Animaux non admis.
Le couchage en hauteur ne convient pas aux enfants de moins de 6 ans.
Sol parquet stratifié dans les pièces de vie et moquette dans les chambres
Laverie automatique disponible dans la résidence (accès payant).
Vos avantages avec cet hébergement
- Situation :
- Départ skis aux pieds (sous condition d'ouverture de la piste)
- A moins de 200m des pistes
- Vos avantages :
- Jusqu'à - 27% sur vos forfaits de ski (selon périodes, uniquement en prévente).
- Toute la saison, des réductions sur vos locations de matériel de ski et vos activités
Situation
- Quartier Les Menuires :
- Les Bruyères
- Nom de Résidence Les Menuires :
- Aconit
- Etage :
- 1er étage
- Exposition :
- Sud
- Est
- Situation :
- Départ skis aux pieds (sous condition d'ouverture de la piste)
- A moins de 200m des pistes
- De 200 à 400m des pistes
- Station :
- Les Menuires
En Résumé
- Exposition Sud

- Lave-vaisselle

- Parking :
- Place de parking
- Animaux :
- Animal interdit
Équipements
- Ascenseur :
- Ascenseur
- Equipement Cuisine :
- Micro-ondes
- Lave-vaisselle
- Bouilloire Electrique
- Grille-pain
- Equipement Séjour :
- Télévision
- Salle de Bains :
- Sèche-cheveux
- Local à ski :
- Casier à ski
Plan de la station
Destination
LES BRUYERES
73440
LES MENUIRES
Coordonnées GPS
Latitude : 45.3147
Longitude : 6.540333
Avis
Note :
(8 avis)
4,13
/ 5
Février 2026
Loane
Note :
3
/ 5
Emplacement idéal au pied des pistes, proche des commerces. Appartement agréable mais très bruyant (au-dessus des casiers à skis). Manque d’information sur les draps et lave-vaisselle réparé seulement le dernier jour. Parking apprécié. ⛷️
Qualité de l'accueil
Le logement correspond au descriptif
Propreté du logement
Décoration du logement
Équipement du logement
Confort de la literie
Avis écrit le 05/03/2026
Janvier 2026
Romain
Note :
4
/ 5
Qualité de l'accueil
Le logement correspond au descriptif
Propreté du logement
Décoration du logement
Équipement du logement
Confort de la literie
Avis écrit le 20/01/2026
Avis par type de profil




































