Studio cabine - CHAVIERE (CV0835)
Présentation
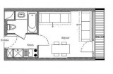
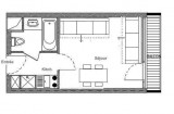
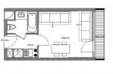
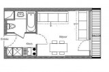
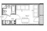
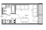
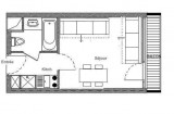
Studio avec coin montagne de 18 m² entièrement rénové pour 3 personnes. Il est situé au 8ème étage d'une résidence avec ascenseur et dispose d'un petit balcon orienté Nord-ouest (vue Masse).
Label : 2 Flocons Argent.
Séjour : 1 canapé lit type BZ pour 2 personnes. Equipé d'une télévision.
Coin montagne (entrée séparée par une porte) : 2 lits simples superposés.
Cuisine équipée de 2 plaques électriques, réfrigérateur, micro-ondes, bouilloire, grille-pain et cafetière.
Salle de bains avec douche multi-jets et toilettes.
Studio non-fumeur
Appartement équipé de couvertures
WIFI station payant (sous réserve de couverture du réseau).
Le couchage en hauteur ne convient pas aux enfants de moins de 6 ans
Label : 2 Flocons Argent.
Séjour : 1 canapé lit type BZ pour 2 personnes. Equipé d'une télévision.
Coin montagne (entrée séparée par une porte) : 2 lits simples superposés.
Cuisine équipée de 2 plaques électriques, réfrigérateur, micro-ondes, bouilloire, grille-pain et cafetière.
Salle de bains avec douche multi-jets et toilettes.
Studio non-fumeur
Appartement équipé de couvertures
WIFI station payant (sous réserve de couverture du réseau).
Le couchage en hauteur ne convient pas aux enfants de moins de 6 ans
Vos avantages avec cet hébergement
- Situation :
- Départ skis aux pieds (sous condition d'ouverture de la piste)
- Vos avantages :
- Jusqu'à - 27% sur vos forfaits de ski (selon périodes, uniquement en prévente).
- Toute la saison, des réductions sur vos locations de matériel de ski et vos activités
Situation
- Quartier Les Menuires :
- La Croisette
- Nom de Résidence Les Menuires :
- Chavière
- Etage :
- 8ème étage
- Situation :
- Départ skis aux pieds (sous condition d'ouverture de la piste)
- Proximité immédiate des bars de nuit - nuisances sonores nocturnes possibles
- Station :
- Les Menuires
En Résumé
- Balcon / Terrasse

Équipements
- Ascenseur :
- Ascenseur
- Equipement Cuisine :
- Micro-ondes
- Bouilloire Electrique
- Grille-pain
- Equipement Séjour :
- Télévision
- Balcon/Terrasse :
- Balcon / terrasse
- Local à ski :
- Casier à ski
Plan de la station
Destination
LA CROISETTE
1 Avenue de la Croisette
73440
LES MENUIRES
Coordonnées GPS
Latitude : 45.324756
Longitude : 6.538774
Avis
Note :
(6 avis)
4
/ 5
Février 2025
Pierre
Note :
4
/ 5
BZ catastrophique en terme de confort et de place prise dans l'appartement.
Oreillers inutilisables.
Equipement électroménager suffisant.
Appartement propre et bien décoré.
Qualité de l'accueil
Le logement correspond au descriptif
Propreté du logement
Décoration du logement
Équipement du logement
Confort de la literie
Avis écrit le 25/02/2025
Mars 2024
philippe
Note :
3
/ 5
Qualité de l'accueil
Le logement correspond au descriptif
Propreté du logement
Décoration du logement
Équipement du logement
Confort de la literie
Avis écrit le 19/03/2024
Avis par type de profil







































