3 pièces - PECLET (PEC201)
Présentation
LES MENUIRES - Quartier La Croisette
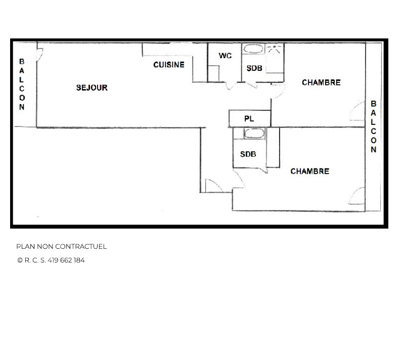
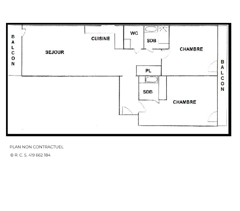
Résidence Péclet (N°201), très bel appartement rénové de 3 pièces pour 6 personnes 60m², au 2ème étage avec ascenseur avec badge, exposé Nord et Sud avec balcon
PRESTATIONS INCLUSES (en saison d'hiver / de décembre à avril) : fourniture de linge de lit, ménage de fin de séjour, serviettes de toilette, tapis de bains, torchons, kit entretien (éponge, produit vaisselle, produit multi-usages et des tablettes lave-vaisselle). Prestations sur demande en dehors de cette période.
AUTRES SERVICES DISPONIBLES SUR RESERVATION : linge complémentaire (lit, toilette, cuisine...), services para-hôteliers et autres prestations (sous réserve de disponibilité).
Cuisine : plaques electriques (x4), refrigérateur, four, lave-vaisselle, micro-ondes, cafetière, bouilloire, grille-pain, appareil à raclette
Séjour : canapé d'angle, télévision écran plat avec lecteur DVD
Chambre 1 : 1 lit double pour 2 personnes (160cm)
Chambre 2 : 1 banquette gigogne (2x80cm), 1 lit superposé (2x90cm)
Salle de bain 1 : lavabo, baignoire, toilettes, sèche-serviettes
Salle de bain 2 : lavabo, douche, sèche-serviettes,
Toilettes séparées avec lave linge
Informations complémentaires :
Animaux refusés
Appartement non fumeur
Equipé de couettes : 2 doubles et 2 simples
Equipé d'une chaise haute bébé et d'un lit bébé
Casier à skis
Catégorie : CONFORT
Label qualité station : 4 flocons "Or"
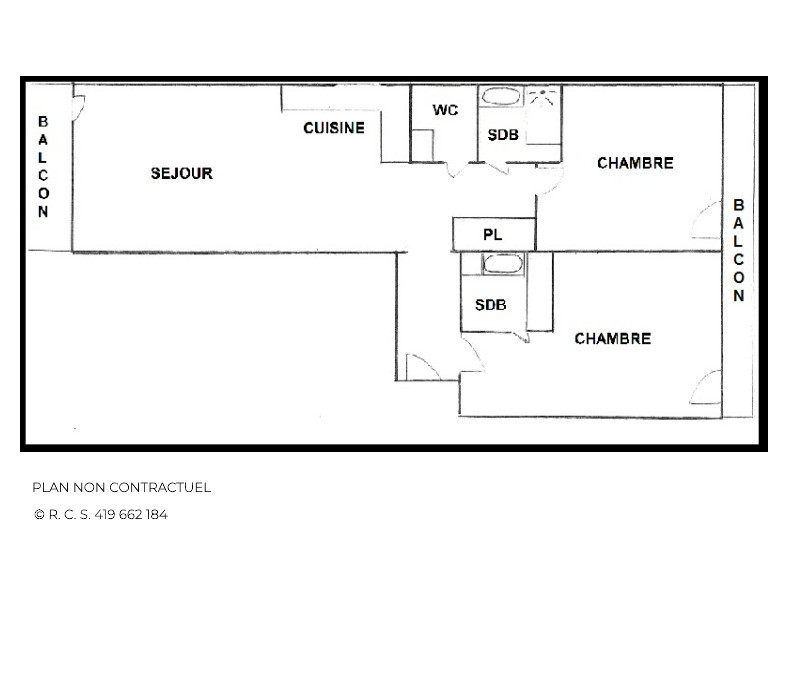
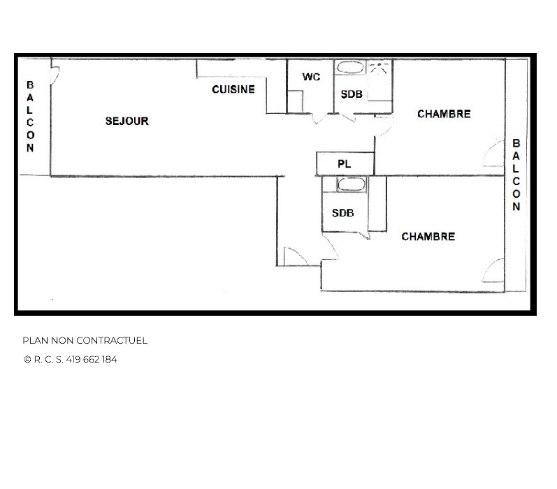
Résidence Péclet (N°201), très bel appartement rénové de 3 pièces pour 6 personnes 60m², au 2ème étage avec ascenseur avec badge, exposé Nord et Sud avec balcon
PRESTATIONS INCLUSES (en saison d'hiver / de décembre à avril) : fourniture de linge de lit, ménage de fin de séjour, serviettes de toilette, tapis de bains, torchons, kit entretien (éponge, produit vaisselle, produit multi-usages et des tablettes lave-vaisselle). Prestations sur demande en dehors de cette période.
AUTRES SERVICES DISPONIBLES SUR RESERVATION : linge complémentaire (lit, toilette, cuisine...), services para-hôteliers et autres prestations (sous réserve de disponibilité).
Cuisine : plaques electriques (x4), refrigérateur, four, lave-vaisselle, micro-ondes, cafetière, bouilloire, grille-pain, appareil à raclette
Séjour : canapé d'angle, télévision écran plat avec lecteur DVD
Chambre 1 : 1 lit double pour 2 personnes (160cm)
Chambre 2 : 1 banquette gigogne (2x80cm), 1 lit superposé (2x90cm)
Salle de bain 1 : lavabo, baignoire, toilettes, sèche-serviettes
Salle de bain 2 : lavabo, douche, sèche-serviettes,
Toilettes séparées avec lave linge
Informations complémentaires :
Animaux refusés
Appartement non fumeur
Equipé de couettes : 2 doubles et 2 simples
Equipé d'une chaise haute bébé et d'un lit bébé
Casier à skis
Catégorie : CONFORT
Label qualité station : 4 flocons "Or"
Vos avantages avec cet hébergement
- Situation :
- Départ skis aux pieds (sous condition d'ouverture de la piste)
- Vos avantages :
- Jusqu'à - 27% sur vos forfaits de ski (selon périodes, uniquement en prévente).
- Toute la saison, des réductions sur vos locations de matériel de ski et vos activités
Situation
- Quartier Les Menuires :
- La Croisette
- Nom de Résidence Les Menuires :
- Péclet
- Etage :
- 2ème étage
- Exposition :
- Sud
- Situation :
- Départ skis aux pieds (sous condition d'ouverture de la piste)
- Proximité immédiate des bars de nuit - nuisances sonores nocturnes possibles
- Station :
- Les Menuires
En Résumé
- Lave-vaisselle

- Exposition Sud

- Balcon / Terrasse

- Animaux :
- Animal interdit
Équipements
- Ascenseur :
- Ascenseur
- Equipement Cuisine :
- Micro-ondes
- Lave-vaisselle
- Lave Linge
- Bouilloire Electrique
- Grille-pain
- Equipement Séjour :
- Télévision
- Balcon/Terrasse :
- Balcon / terrasse
- Local à ski :
- Casier à ski
Plan de la station
Destination
LA CROISETTE
73440
LES MENUIRES
Coordonnées GPS
Latitude : 45.324686
Longitude : 6.538120
Avis
Note :
(13 avis)
4,77
/ 5
Juillet 2025
Marc
Note :
5
/ 5
Très bien
Qualité de l'accueil
Le logement correspond au descriptif
Propreté du logement
Décoration du logement
Équipement du logement
Confort de la literie
Avis écrit le 22/07/2025
Février 2025
David
Note :
5
/ 5
Qualité de l'accueil
Le logement correspond au descriptif
Propreté du logement
Décoration du logement
Équipement du logement
Confort de la literie
Avis écrit le 04/02/2025
Avis par type de profil











































