2 pièces - BURONS (BU0509)
Présentation
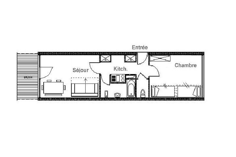
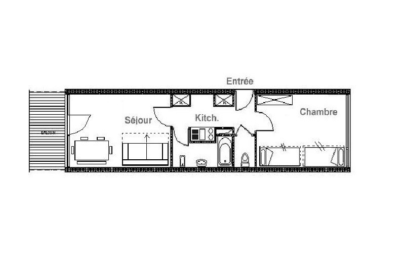
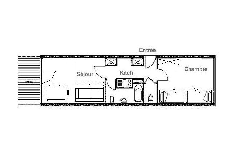
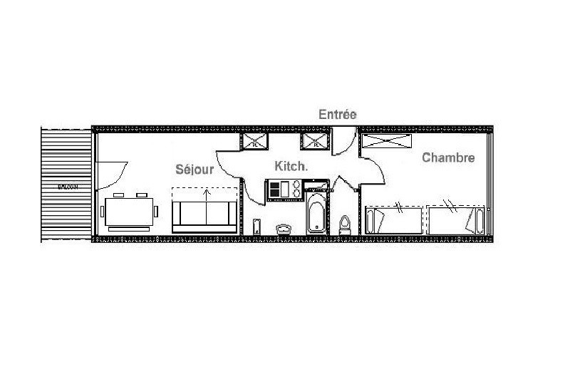
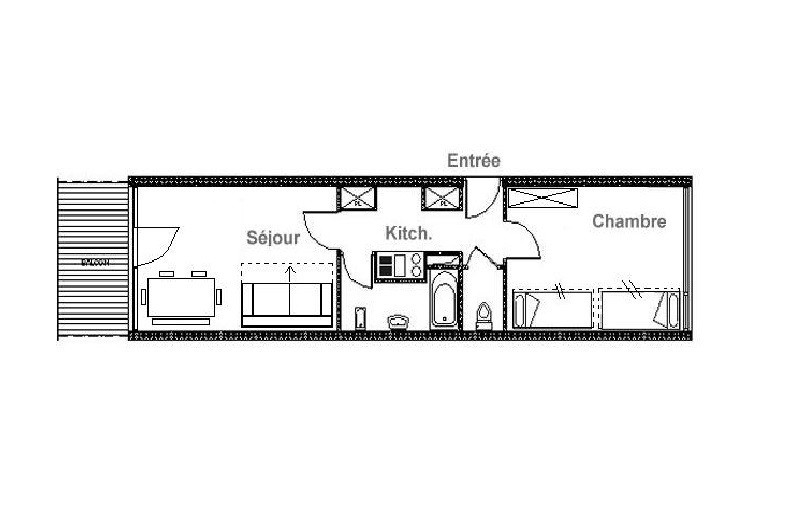
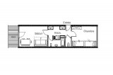
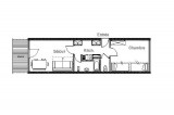
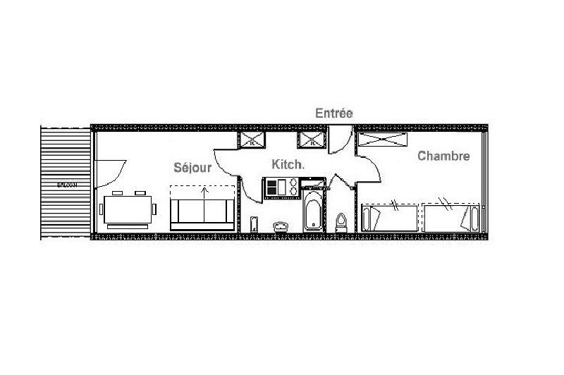
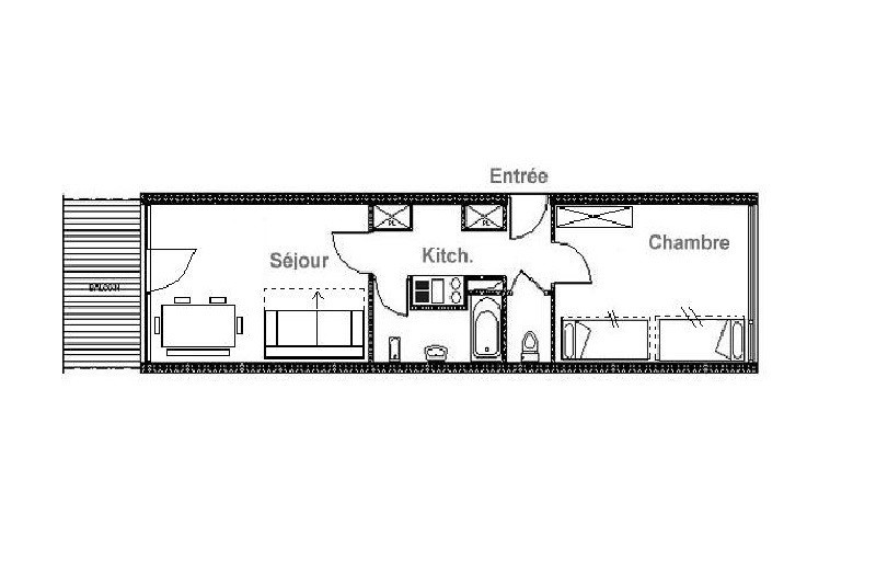
Très bel appartement entièrement rénové de 2 pièces de 36m² pour 6 personnes avec un balcon exposé sud, vue sur pistes. Il est situé au 5ème étage avec ascenseur.
Label: 3 Flocons Or
Séjour : 1 canapé-lit rapido (140x200 cm) et est équipé d'une télévision.
Chambre : 2x2 lits simples superposés.
Salle de bain : baignoire
Un W.C. indépendant.
Cuisine incorporée 3 plaques vitrocéramiques, réfrigérateur, four multifonction, lave vaisselle et micro ondes, bouilloire, grille-pain et cafetière.
Sol : lino dans tout l'appartement.
Non fumeur
Animaux refusés
Appartement équipé de couvertures
WIFI Station payant (sous réserve de couverture de réseau)
Le couchage en hauteur ne convient pas aux enfants de moins de 6 ans.
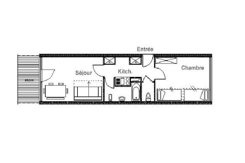
Label: 3 Flocons Or
Séjour : 1 canapé-lit rapido (140x200 cm) et est équipé d'une télévision.
Chambre : 2x2 lits simples superposés.
Salle de bain : baignoire
Un W.C. indépendant.
Cuisine incorporée 3 plaques vitrocéramiques, réfrigérateur, four multifonction, lave vaisselle et micro ondes, bouilloire, grille-pain et cafetière.
Sol : lino dans tout l'appartement.
Non fumeur
Animaux refusés
Appartement équipé de couvertures
WIFI Station payant (sous réserve de couverture de réseau)
Le couchage en hauteur ne convient pas aux enfants de moins de 6 ans.
Vos avantages avec cet hébergement
- Situation :
- Départ skis aux pieds (sous condition d'ouverture de la piste)
- A moins de 200m des pistes
- Vos avantages :
- Jusqu'à - 27% sur vos forfaits de ski (selon périodes, uniquement en prévente).
- Toute la saison, des réductions sur vos locations de matériel de ski et vos activités
Situation
- Quartier Les Menuires :
- La Croisette
- Nom de Résidence Les Menuires :
- Burons
- Etage :
- 5ème étage
- Exposition :
- Sud
- Situation :
- Départ skis aux pieds (sous condition d'ouverture de la piste)
- A moins de 200m des pistes
- Station :
- Les Menuires
En Résumé
- Exposition Sud

- Lave-vaisselle

- Balcon / Terrasse

- Animaux :
- Animal interdit
Équipements
- Ascenseur :
- Ascenseur
- Equipement Cuisine :
- Micro-ondes
- Lave-vaisselle
- Bouilloire Electrique
- Grille-pain
- Equipement Séjour :
- Télévision
- Balcon/Terrasse :
- Balcon / terrasse
- Local à ski :
- Casier à ski
Plan de la station
Destination
LA CROISETTE
1 Avenue de la Croisette
73440
LES MENUIRES
Coordonnées GPS
Latitude : 45.321892
Longitude : 6.538627



































