430/1079
2 pièces - COMBES (COMB1211)
Présentation
Les Menuires - Quartier de Brelin
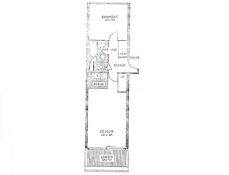
Les Combes n° 1211 / Appartement 2 pièces , 4 personnes, 39m², 12ème étage avec ascenseur, balcon exposé Sud, et garage fermé n° 94
PRESTATION INCLUSE (en saison d'hiver / de décembre à avril) : ménage de fin de séjour. Prestations sur demande en dehors de cette période.
AUTRES SERVICES DISPONIBLES SUR RESERVATION : linge (lit, toilette, cuisine...), services para-hôteliers et autres prestations (sous réserve de disponibilité).
Cuisine : plaques de cuisson induction (x3), four traditionnel, micro-ondes, hotte, grille-pain, cafetière filtre, bouilloire, lave-vaisselle, petit congélateur, réfrigérateur , TASSIMO T 42 n'accepte que les capsules de la marque TASSIMO, appareil à raclette
Séjour : banquette gigogne (2 x 80cm) - télévision
Chambre : lit double (140cm), lits simples superposés (2 x 80cm), télévision
Salle de bains : lavabo, baignoire avec pare-douche, lave-linge 9kg, sèche serviette
Toilettes séparées
Informations complémentaires :
Appartement équipé de couvertures polaires
Appartement non fumeur
Animaux refusés
Accès wifi gratuit et illimité (sous réserve de bon fonctionnement du service de l'opérateur)
Casier à skis
garage dans box fermé avec le logement (N°94 )
dimension : hauteur sous plafond environ 1.80m
longueur :4.90 m
largeur entre les rails de la porte : 2.35 m
Catégorie : CONFORT
Label qualité station : 4 flocons "Or"
Les Combes n° 1211 / Appartement 2 pièces , 4 personnes, 39m², 12ème étage avec ascenseur, balcon exposé Sud, et garage fermé n° 94
PRESTATION INCLUSE (en saison d'hiver / de décembre à avril) : ménage de fin de séjour. Prestations sur demande en dehors de cette période.
AUTRES SERVICES DISPONIBLES SUR RESERVATION : linge (lit, toilette, cuisine...), services para-hôteliers et autres prestations (sous réserve de disponibilité).
Cuisine : plaques de cuisson induction (x3), four traditionnel, micro-ondes, hotte, grille-pain, cafetière filtre, bouilloire, lave-vaisselle, petit congélateur, réfrigérateur , TASSIMO T 42 n'accepte que les capsules de la marque TASSIMO, appareil à raclette
Séjour : banquette gigogne (2 x 80cm) - télévision
Chambre : lit double (140cm), lits simples superposés (2 x 80cm), télévision
Salle de bains : lavabo, baignoire avec pare-douche, lave-linge 9kg, sèche serviette
Toilettes séparées
Informations complémentaires :
Appartement équipé de couvertures polaires
Appartement non fumeur
Animaux refusés
Accès wifi gratuit et illimité (sous réserve de bon fonctionnement du service de l'opérateur)
Casier à skis
garage dans box fermé avec le logement (N°94 )
dimension : hauteur sous plafond environ 1.80m
longueur :4.90 m
largeur entre les rails de la porte : 2.35 m
Catégorie : CONFORT
Label qualité station : 4 flocons "Or"
Vos avantages avec cet hébergement
- Situation :
- Départ skis aux pieds (sous condition d'ouverture de la piste)
- Vos avantages :
- Jusqu'à - 27% sur vos forfaits de ski (selon périodes, uniquement en prévente).
- Toute la saison, des réductions sur vos locations de matériel de ski et vos activités
Situation
- Quartier Les Menuires :
- Brelin
- Nom de Résidence Les Menuires :
- Les Combes
- Exposition :
- Sud
- Situation :
- Départ skis aux pieds (sous condition d'ouverture de la piste)
- Station :
- Les Menuires
En Résumé
- Lave-vaisselle

- Balcon / Terrasse

- Exposition Sud

- Accès wifi

- Parking :
- Place de parking
- Animaux :
- Animal interdit
Équipements
- Ascenseur :
- Ascenseur
- Equipement Cuisine :
- Lave-vaisselle
- Lave Linge
- Bouilloire Electrique
- Equipement Séjour :
- Télévision
- Connexion Wi-Fi
- Balcon/Terrasse :
- Balcon / terrasse
- Local à ski :
- Casier à ski
Plan de la station
Destination
BRELIN
73440
LES MENUIRES
Coordonnées GPS
Latitude : 45.326489
Longitude : 6.539858
Avis
Note :
(8 avis)
4,25
/ 5
Mars 2025
Hazel
Note :
3
/ 5
Duvets would be better than sheets and blankets. Incorrect instructions given for switching on electric.
Qualité de l'accueil
Le logement correspond au descriptif
Propreté du logement
Décoration du logement
Équipement du logement
Confort de la literie
Avis écrit le 01/04/2025
Mars 2025
Kai Frederik
Note :
5
/ 5
Très bon logement au Brelin avec belle vue.
Qualité de l'accueil
Le logement correspond au descriptif
Propreté du logement
Décoration du logement
Équipement du logement
Confort de la literie
Avis écrit le 09/03/2025
Avis par type de profil
Disponibilités & Tarifs
430/1079











































